MATCHING FUNDS AVAILABLE! Double your impact and help bring freedom and all its little joys to more families like Appa Rao's.

Match my gift now.

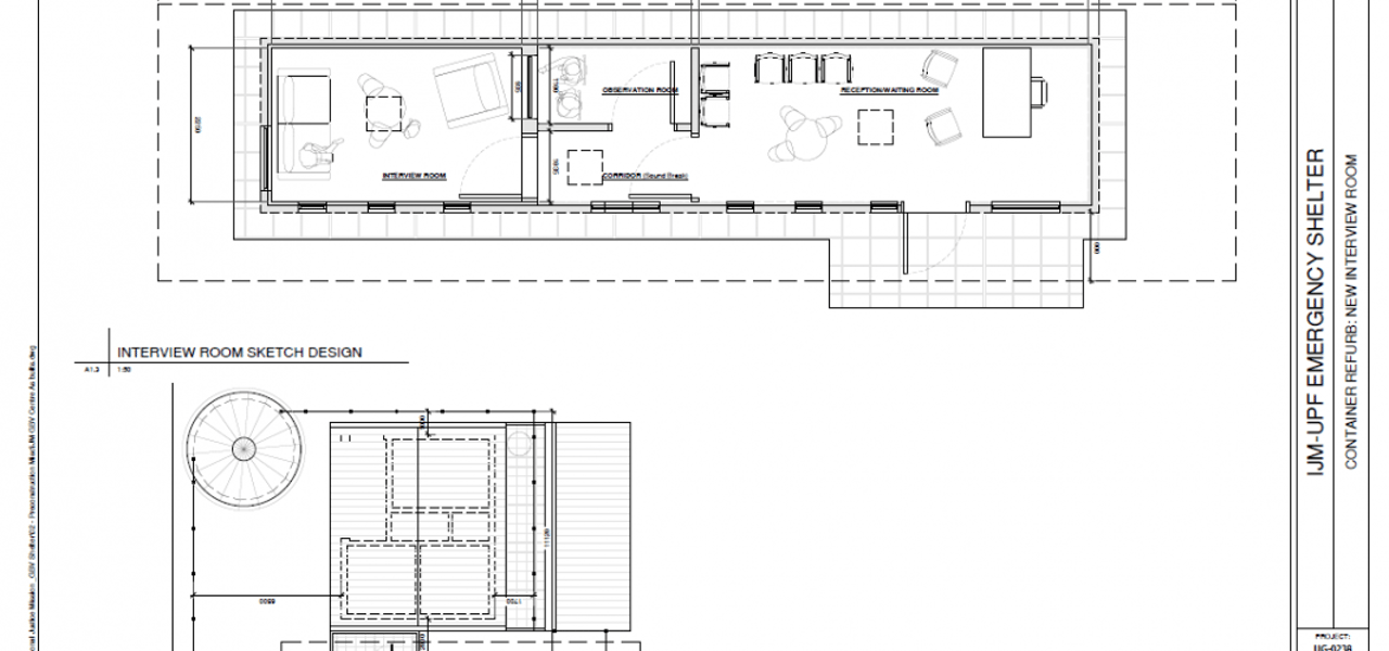
Trauma-Informed Police Interview Room Piloted in Uganda

Summary:

Uganda Police Force and IJM Uganda have partners to design and furnish a model interview room for CID headquarters in Kampala. This is to be used with women and children survivors of violence, including sexual assault, domestic violence and child sex offences.
Uganda Interview Room

Uganda Police Force and IJM Uganda have partners to design and furnish a model interview room for CID headquarters in Kampala. This is to be used with women and children survivors of violence, including sexual assault, domestic violence and child sex offences.

The model interview room is an important addition for UPF District Police Stations. Many Ugandan police units lack dedicated interview spaces as many police stations were constructed during pre-independence when the size of the force was much smaller. As the force has grown considerably since these older stations are often bursting at the seams. Any space that once may have been used for interviews is now an office or storage. Accordingly, interviews tend to be conducted in shared spaces, offer little privacy and run the risk of re-traumatizing survivors of violence.

IJM designed the survivor-friendly interview facility, which includes a waiting room, an interview room, and an observation room, using a refurbished shipping container. Shipping containers are widely used by U.N. agencies, national governments as well as local businesses and organizations for extra housing or office space. The refurbished shipping container is a cost-effective and mobile means of providing privacy and safety for survivors of sexual assault. IJM and its police partners in the UPF hope to scale up its use in multiple locations in Uganda once it has been tested in Kampala.

The typical police interview room is lit by overhead florescent lighting and furnished with a bare, table and straight-backed office chairs. In contrast, the new survivor-friendly interview rooms are designed to help clients feel safe and comfortable with carpeting, overstuffed furniture, and soft lighting.

The model survivor-friendly interview room also contains audio-video equipment, which will make possible effective and trauma-informed gathering of evidence from child and adult survivors of sexual assault and other crimes. The AV system for the interview rooms is used by the Australian Federal Police and numerous other Australian law enforcement agencies. This particular system is somewhat unique, as most recording systems used in law enforcement require permanent installation. This system is mobile, however, and produces recordings that embed metadata, rendering them tamper-proof, and simultaneously records on multiple CDs, eliminating the need to burn copies for evidence, case files, prosecutors, etc.

IJM will work with Uganda Police to train law enforcement personnel on how to use the interview room and audio-video equipment to secure court-worthy evidence in a trauma-informed way.

Give Now